Site agence Novelty Occitanie

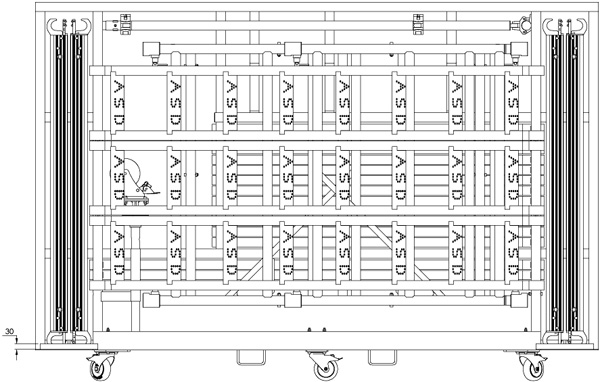
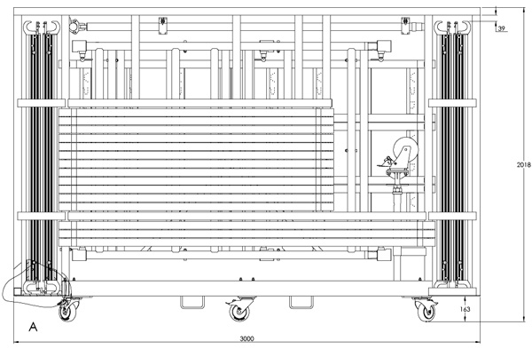
ASD - Tour UP’6

Tour échaffaudage 6m avec escalier, garde-corps et  stabilisateurs. Livrée en chariot.
Informations
  • Codart : UP6

Détails produit

Caractéristiques dimensionnelles (configuration 6m) :

  • Encombrement au sol sans les jambes de force: 1,6 m x 2 m
  • Encombrement au sol avec les jambes de force: 4,1MIN / 4,6MAX m  x 3,75MIN / 4,25MAX m
  • Encombrement en hauteur : 7,2 m + 0.54 m (Réglage pieds)
  • Poids total de la tour : 315 Kg

Caractéristiques dimensionnelles (configuration 12m) :

 

  • Encombrement au sol sans les jambes de force: 1,6 m x 2 m
  • Encombrement au sol avec les jambes de force: 4,1MIN / 4,6MAX m  x 3,75MIN / 4,25MAX m
  • Encombrement en hauteur : 12,8 m + 0.54 m (Réglage pieds)
  • Poids total de la tour : 500 Kg

Caractéristiques techniques :

 

  • Structure Aluminium avec pieds réglables en acier électro-zingué
  • Plancher avec ossature Aluminium et plateau en Bois

Caractéristiques d’utilisation :

  • La tour doit être utilisée en intérieur, non exposée au vent.
  • Elle doit être utilisée complète et assemblée suivant la notice de montage.

Conditions de chargement maximales (configuration 6m) :

 

  • 250 kg max réparti sur 1 plancher, niveau 1 (2m)
  • 250 kg max réparti sur 1 plancher, niveau 2 (4m)
  • 400 kg max réparti sur les 2 planchers, niveau 3 (6m)

Conditions de chargement maximales (configuration 12m) :

  • Aucune charge admise sur les niveaux 1, 2, 3, 4 & 5
  • 250 kg max réparti sur 1 plancher, niveau 6 (12m)

Utilisation de la tour :

  • La Tour escaliers est prévue pour être utilisée sur des surfaces planes mais égalementdes surfaces à niveaux discontinus. Il est donc possible de rattraper les différences de niveau à l’aide des pieds réglables.

 

 

 

Nous contacter

Vous avez un projet ou une question ?

Nos équipes sont prêtes à répondre à vos besoins et à concrétiser vos projets. Contactez votre agence locale ou laissez-nous un message, nous serons ravis de vous accompagner.

Contactez-nous